
• Plot plan site layout
• Grading & drainage design
• Utility road design
• Utility layout conduit design
• Retaining walls
• Excavation plans
• Quality Assurance, Quality Control (QA/QC) reviews
• Qualified SWPPP Developer
• Traffic Control Plans

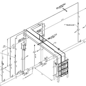
• Concrete foundations for SCADA cabinets, instrumentation & controls shelters, controls panels, solar and battery back-up (UPS) systems, cathodic engine, antennas.
• Concrete supports for mainline valves, pipeline, PIG launchers & receivers, underground vaults.
• Steel shaders and enclosures.
• Pipe Stress Analysis and Blowdown Thrust calculations.

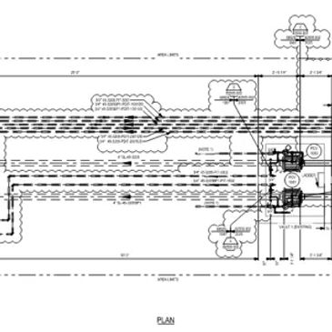
• Piping design layouts, orientation of process equipment, and interconnecting piping.
• Design pipeline system using Plant 3D, Civil 3D and AVEVA.
• Hydrotest design & plans.
• PIG launcher and receiver design.

• Design control equipment to monitor high pressure distribution regulator stations.
• Monitor and control systems for critical valve stations.
• Integrate valves in vaults with above ground control panels.

• Design control equipment to automate & regulate high pressure valves.
• LineGuard electronic linebreak detection system.
• SCADA monitoring panels.
• Uninterruptable Power Supply (UPS) systems with solar integration.
Gasteiger Engineering LLC